For Sale

285 Castlereagh Road, Belfast, BT5 5FL

Asking Price £575,000

go back
  • Status For Sale
  • Asking Price £575,000
  • Stamp Duty £16,250* / £45,000**
  • Style Site
  • *First time buyers are exempt from stamp duty on properties costing up to £300,000
    **Higher amount applies when purchasing as buy to let or as an additional property

    Contact Colliers Residential

    Office: 028 9024 4000

Property Information

Constructed in the 1970s, and currently in good condition, it is now occupied by a variety of businesses across two floors, accessible via three separate entrances. Additional advantages include outside balcony areas and off-street parking.
The net internal area totals c.3589 sq feet or 333 sq m.
This presents a rare opportunity to acquire a building, currently configured as multiple commercial units, which has a rental income, with the added benefit of full planning permission for 4 x two-bedroom apartments on the first and second floors, while retaining the 2 x ground floor retail units.
Planning approval, which was granted in 2024 under Application: LA04/2024/1476/F, permits two commercial units on the ground floor, three two-bedroom apartments on the first floor, and a penthouse two-bedroom apartment on the second floor.
This property offers strong investment potential in its existing commercial configuration or as an attractive development opportunity. (Rental income details available upon request.)

PLANNING
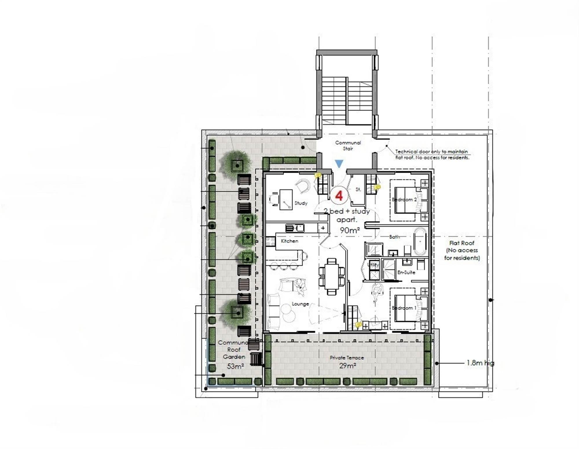
Proposed plans under Reference LA04/2024/1476/F for a refurbishment extension and conversion of the first and second floors to incorporate:

No Floor Type Beds sq m sq ft
1 First Apartment 2 72 775
2 First Apartment 2 74 797
3 First Apartment 2 72 775
4 Penthouse Apartment 3 90 969

See plans and proposed elevations attached.
This is an ideal investment / development opportunity as there would be potential for immediate income from the ground floor units while creating the first and second floors into residential accommodation.

TITLE
The property is held on a fee simple title.

SALE PRICE
The property is offered for sale at £575,000 exclusive

ANTI MONEY LAUNDERING
In order to comply with Anti Money Laundering legislation, the successful tenant will be required to provide certain identification documents. The required documents will be confirmed to and requested from the successful tenant at the point of agreeing Heads of Terms.

FURTHER INFORMATION
For further information or to arrange an inspection of the property, please contact:
David Menary
Tel: +44 77 7555 7090
Email: david.menary@colliers.com

Room Details

RETAIL/OFFICE 1:
RETAIL/OFFICE 2:
STAFF ROOM:
Storage:
OFFICE 3:
OFFICE 4:
Read More

Location

Whats Near by?

Click below to see on map

Directions

285 to 287 Castlereagh Road is a commercial building located on a commanding site on the junction of Ladas Drive and the Castlereagh Road

The property is in a highly accessible and convenient location close to East and South Belfast and is approximately 1

5 miles to the City Centre

Mortgage Calculator

  • Propery Value
  • Deposit
  • Loan Amount
  • Int. Rate
  • Term (Yrs)
  • Repayment/month

Disclaimer: The following calculations act as a guide only, and are based on a typical repayment mortgage model. Financial decisions should not be made based on these calculations and accuracy is not guaranteed. Always seek professional advice before making any financial decisions.

Request More Information
Requesting Info about...
285 Castlereagh Road, Belfast 285 Castlereagh Road, Belfast

By registering your interest, you acknowledge our Privacy Policy and Terms & Conditions
Value My Property
Do you have a property to sell?
If you have a property to sell we can arrange for one of our experienced valuers to provide you with a no-obligation valuation.

Please complete the form opposite and a member of our team will get in touch to discuss your requirements.
Financial Services Enquiry
We can help with mortgages and insurance
Colliers Residential work with independent financial advisers that offer private mortgage advice and insurance options.

If you would like more information about what we can offer please complete the form opposite and a member of our team will get in touch to discuss your requirements.
Arrange a Viewing
Arrange a viewing for...
285 Castlereagh Road, Belfast 285 Castlereagh Road, Belfast
Make an Offer
Make an Offer for...
285 Castlereagh Road, Belfast 285 Castlereagh Road, Belfast