For Sale

Apartment Site with FPP at Queens Square, Overlooking Custom House , Belfast, BT1 3FG

Offers Around £2,000,000

go back

Property Information

Investment Opportunity - Freehold
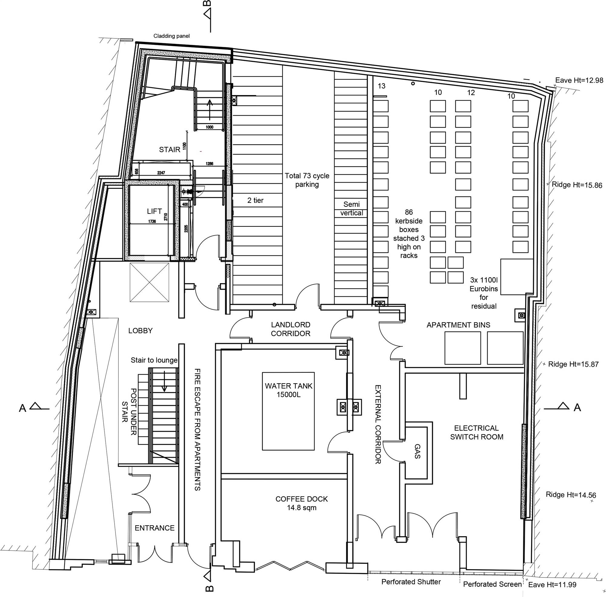
Total units: 60 apartments + 1 retail
Net internal area: 24,197 sq ft
Yield: 7.0% base (potentially higher)
Rental income (targeted): £1m/year
Planning: Approved
A new chapter is unfolding in Belfast. Once the shipbuilding powerhouse of the world, today"s Belfast is reshaping itself through innovation, regeneration, and confident ambition. With over £1 billion in funding through the Belfast Region City Deal, over 20,000 jobs forecasted, and a plan to deliver 31,600 new homes by 2035, the city"s urban evolution is no longer on the horizon, it"s here.

The Local Development Plan 2035 is delivering smarter density, stronger communities, and investor-friendly frameworks. This landmark development site and scheme offers investors a rare chance to secure high-yield, future-proofed assets in one of the UK"s most exciting property markets.
Combining exceptional location, strong rental fundamentals, and long-term capital growth potential, Queen"s Square represents an investment opportunity that is both timely and enduring. Driven by a young, educated population and a thriving digital, creative, and professional sector, demand for well-located, high-specification residential property far exceeds supply.

Belfast enjoys a unique trading edge as the only UK region with seamless EU access via the NI Protocol. Major infrastructure, like the Ulster University expansion and Titanic Quarter regeneration, are pulling the city centre eastward, and Queen"s Square is perfectly placed at the convergence.

Queen"s Square is one of Belfast"s most distinctive and desirable urban quarters where history, culture, and connectivity converge.

Framed by the landmark McHugh"s Bar and The Boat, the development is perfectly placed between the timeless elegance of Custom House Square and the city"s contemporary creative pulse.

Residents will step out into Belfast"s most dynamic district from the vibrant restaurants and galleries of Cathedral Quarter, to the riverfront promenades of the Titanic Quarter and Victoria Square"s premier shopping.

The nearby Loft Lines scheme will deliver homes as part of Belfasts biggest city-centre residential project. With future redevelopment of the adjacent bus depot expected, Queen"s Square will become a new epicentre of urban living.

Located just minutes from Belfast Grand Central Station, the largest multi-modal transport hub in Ireland, and a short ride to George Best Belfast City Airport, Queen"s Square offers seamless access to both regional and international destinations.

With hourly direct trains to Dublin and rapidly evolving city infrastructure, connectivity is a major strength. The new Ulster University campus is moments away, bringing a daily flow of students, professionals, and innovation to the neighbourhood.
For residents, it is a place to thrive. For investors, it is a location that will consistently attract premium demand from those seeking both experience and convenience in the heart of the city.

Queen"s Square isn"t just a residential block, it"s an architectural statement with commercial intelligence. Rising 14 storeys between two cultural icons, the building reflects the vibrancy of its surroundings while offering functionality designed for modern living.

* 60 design-led apartments:
* 41 stylish studios,
* 17 contemporary one-beds, and
* 2 premium two-bedroom units.

1 ground floor retail space: Ideal for a destination coffee bar or lifestyle brand delivering street-level vibrancy and tenant appeal.

24,197 sqft of intelligently configured space: Every square inch is optimised for value, comfort, and modern tenancy patterns.

With planning approved and demand outstripping supply, this is a rare opportunity to enter a high-yield, low-barrier market that"s being reshaped in real time. This is a market still early in its growth cycle with tailwinds, not headwinds.

7.0%+ rental yield - base scenario, with upside from young professional and student targeting.

£800,000 - £1,000,000 annual rental income potential.

Gross rental yields in Belfast city centre average 5.5-7%, with net yields stabilising around 3.5-5%.

Expect premium finishes, integrated layouts, and a building that speaks to both lifestyle renters and discerning long-term investors.

Queen"s Square aligns perfectly with the trajectory of central Belfast, sitting within a dense regeneration zone where demand is outpacing delivery.

The numbers speak for themselves. With 31,600 homes needed city-wide by 2035 and only 8,000 allocated for city-centre areas, there"s an urgent gap in the market, and Queen"s Square is ready to fill it.

Planning permission is already secured, eliminating delays and unlocking speed-to-market advantages.

This isn"t speculative positioning, it"s proximity to upside momentum. Every development happening around Queen"s Square raises its floor and extends its ceiling.

Your space to pause..
Studio and one-bedroom layouts maximise light, flow and liveability. Every apartment is designed with comfort and calm in mind, your private retreat just steps from the city"s pulse.

Finishes with Intent..
Proposed finished with premium flooring, integrated lighting, and contemporary fittings give the development a refined, finish and enduring quality. Timeless palettes and tactile materials elevate everyday living.

Clean Lines Quiet Luxury..
Soft tones, large-format tiling, and modern fixtures create hotel-style bathrooms designed for relaxation. Every detail reflects purpose, practicality, and elegant restraint.

Crafted to Cook Designed to Live..
Smart, compact kitchens are built for real life. Energy-efficient appliances, matte cabinetry, and clean lines deliver a perfect blend of utility and understated style.

Queen"s Square sits at the intersection of ambition and lifestyle, home to a rising class of urban renters driving Belfast"s economic and cultural rebirth. These are the students becoming founders, the graduates becoming tenants, and the entrepreneurs turning flats into headquarters.

Where students, startups, and smart money converge in Belfast"s most connected postcode

With over 70,000 students across Belfast"s institutions and the £364m Ulster University city centre campus now fully operational, rental demand is surging — and not just seasonally. This isn"t about student housing blocks. It"s about micro-living for macro-lifestyles: compact, stylish, central homes for a generation that"s mobile, digital, and quality-conscious.

The professional workforce is growing fast too. The tech, media, green energy and fintech sectors are expanding year-on-year, driven by Belfast"s unique dual market access (UK and EU) and business costs 30% lower than London. Global names like Citi, Allstate, PwC, and Rapid7 already operate here — and they"re hiring.

And the city is keeping pace with them. From Loft Lines and Titanic Quarter to the Cathedral Quarter"s food scene and live venues, Belfast"s centre is no longer just where people work — it"s where they want to stay. This is the 15-minute city in real time: university, office, gym, culture, dinner, all within easy walking distance.

The scheme includes 60 apartments and a ground-floor retail unit, offering a total net internal area of 24,197 sq ft intelligently configured to maximise return. With planning already approved, the heavy lifting has been done, allowing investors to move swiftly and decisively.

Rental income is projected £800,000 - £1,000,000 per annum, with further upside through strategic tenant targeting.

Queen"s Square delivers not just on paper, but on long-term potential. This is an opportunity to step into a city-core scheme with efficiency, value, and demand, the edge every investor looks for, already engineered into the blueprint.

Queen"s Square offers the rare intersection of strong fundamentals, market demand, and future upside making it one of Belfast"s most investible addresses.

Contact David Menary at Colliers for all enquiries, and to discuss all gross development values, rental and yield and proposed construction costing quotes on 07775557090 or david.menary@colliers.com .
Read More

Location

Whats Near by?

Click below to see on map

Directions

The Site at Queens Square site beside the Boat Building and McHugh's and overlooks the Square

Mortgage Calculator

  • Propery Value
  • Deposit
  • Loan Amount
  • Int. Rate
  • Term (Yrs)
  • Repayment/month

Disclaimer: The following calculations act as a guide only, and are based on a typical repayment mortgage model. Financial decisions should not be made based on these calculations and accuracy is not guaranteed. Always seek professional advice before making any financial decisions.

Request More Information
Requesting Info about...
Apartment Site with FPP at Queens Square, Belfast Apartment Site with FPP at Queens Square, Belfast

By registering your interest, you acknowledge our Privacy Policy and Terms & Conditions
Value My Property
Do you have a property to sell?
If you have a property to sell we can arrange for one of our experienced valuers to provide you with a no-obligation valuation.

Please complete the form opposite and a member of our team will get in touch to discuss your requirements.
Financial Services Enquiry
We can help with mortgages and insurance
Colliers Residential work with independent financial advisers that offer private mortgage advice and insurance options.

If you would like more information about what we can offer please complete the form opposite and a member of our team will get in touch to discuss your requirements.
Arrange a Viewing
Arrange a viewing for...
Apartment Site with FPP at Queens Square, Belfast Apartment Site with FPP at Queens Square, Belfast
Make an Offer
Make an Offer for...
Apartment Site with FPP at Queens Square, Belfast Apartment Site with FPP at Queens Square, Belfast